Bien-Zenker GmbH
CONCEPT-M 153 Stuttgart Platz 18


Repräsentatives Einfamilienhaus inspiriert vom Dreiklang „Licht, Luft, Leben“

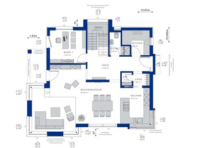
Das CONCEPT-M 153 wurde von erfahrenen Bien-Zenker Architekten in Zusammenarbeit mit dem Dachflächenfensterhersteller Velux entwickelt. Seine hellen, lichtdurchfluteten Räume verdankt es den großen Glasflächen in Wohnbereich und Treppenhaus sowie innovativen Lichtlenksystemen im Dach. Der barriereoptimierte Grundriss mit abgesenktem Wohnbereich bietet Entfaltungsraum und Komfort auf viele Jahre hinaus. Mit seiner Energieeffizienz und seiner durchdachten, bewohnerfreundlichen Aufteilung, präsentiert sich das CONCEPT-M 153 als rundum gelungene Neuentwicklung und bietet optimalen Wohnkomfort und höchste Lebensqualität.

Das CONCEPT-M 153 Stuttgart nutzt darüber hinaus die Sonne auch zur Energiegewinnung! Die ins Dach integrierte Photovoltaik-Anlage produziert den gesamten Strom für die Wärmepumpe und macht das Haus damit zu einem Plus-Energie-Wärmepumpen-Haus. Zusammen mit einem hochmodernen Gebäudemanagement sorgt diese Anlage für eine stets behagliche Wohnatmosphäre durch Temperaturüberwachung, kontrollierte Be- und Entlüftung und automatische Beschattung mit Sonnenstrom.

Mit Bien-Zenker bauen Sie auf die Werte Zukunftssicherheit, Qualität und Nachhaltigkeit. Dafür erhält Bien-Zenker regelmäßig renommierte Preise wie die Auszeichnungen „Fairster Fertighausanbieter“ (FOCUS-MONEY 2024), „Deutschlands Kundenchampion“ (F.A.Z.- Institut 2024) oder den Plus X Award („Most Innovative Brand“, „Nachhaltigkeit“ 2022).

Weitere Informationen 
Virtuelle Besichtigung

Nehmen Sie direkten Kontakt zu uns auf -
gerne beantworten wir Ihre Anfragen telefonisch oder per Mail:

Telefon: 0711 2807550, E-Mail: info@bien-zenker.de

Bien-Zenker Hausberater sind immer vor Ort: jetzt auch online!
Individuelle Hausberatung im persönlichen Gespräch gibt es bei Bien-Zenker jetzt auch als Online-Konferenz. Geben Sie einfach Ihre Postleitzahl an und vereinbaren Sie einen Termin mit Ihrem Hausberater vor Ort!
Zur Online-Beratung
 

Kontakt zum Objekt „CONCEPT-M 153 Stuttgart“

Ausstellung Stuttgart
Telefon +49 711 2807550
E-Mail info(@)bien-zenker.de

Details

Gesamtwohnfläche 189,67 m²
Wohnfläche Erdgeschoss 100,06 m²
Wohnfläche Obergeschoss 89,61 m²
Konstruktionsart Holzrahmenkonstruktion in Großtafelbauweise

Info-Anforderung an Bien-Zenker GmbH


Kontakt

Firmenzentrale

Bien-Zenker GmbH

Am Distelrasen 2
36381 Schlüchtern

Telefon: 0800 422 22 28

www.bien-zenker.de

Die Ausstellung Eigenheim und Garten ist nicht verantwortlich für die Inhalte externer Internetseiten.

Eintritt

Eintrittspreis: € 3,–

Ermäßigt: € 1,50
(Kinder bis 16 Jahre, Schüler, Studenten, Rentner, Schwerbehinderte)
Kinder bis 10 Jahre: kostenlos

Parkplatz: € 2,–

Öffnungszeiten

11:00 bis 18:00 Uhr
Mittwoch, Donnerstag, Freitag, Samstag und Sonntag* 
(Montag und Dienstag ist Ruhetag)

* Auch feiertags. Gilt nicht am: Karfreitag,
24.–26.12./31.12./1.1.