WeberHaus GmbH & Co. KG
Energiesparhaus Platz 31


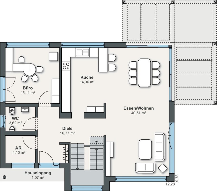
Energiesparhaus mit viel Platz für die Familie

Ob Architektur, Platzangebot oder energetische Ausstattung – das WeberHaus-Ausstellungshaus generation5.0 punktet in allen Bereichen. So verfügt das Einfamilienhaus dank seiner zweifarbigen Außengestaltung nicht nur über moderne und stilvolle Optik. Es bietet auf mehr als 180 qm Wohnfläche Platz für die ganze Familie. Das Erdgeschoss (ca. 95 qm) bietet mit extra hohen Räumen (267 cm) eine großzügige Wohnatmosphäre. Über die Empore gelangt man in das ca. 85 qm große Dachgeschoss. Das Elternschlafzimmer wir durch eine Ankleide ergänzt. Es stehen außerdem drei fast gleichgroße Zimmer zur Verfügung, die flexibel genutzt werden können.

Nehmen Sie direkten Kontakt zu uns auf -
gerne beantworten wir Ihre Anfragen telefonisch oder per Mail:

Frau Beate Lenner-Werz, Tel. 0151-57752859, email: beate.lenner-werz(@)weberhaus.de

Frau Susanne Zondler, Tel. 0711-952710,  email: susanne.zondler(@)weberhaus.de

Herr Jürgen Bentel, Tel. 0711-952710, email: juergen.bentel(@)weberhaus.de

Herr Maurice-Antoine Stich, Tel. 0711-9527123, email: maurice-antoine.stich(@)weberhaus.de

Herr Bastian Voß, Tel. 0172-6185898, email: bastian.voss(@)weberhaus.de

Kontakt zum Objekt „Energiesparhaus“

Ausstellung Stuttgart
Telefon +49 711 952710
Fax +49 711 9527120
E-Mail fellbach(@)weberhaus.de

Details

Gesamtwohnfläche 180,00 m²
Wohnfläche Erdgeschoss 95,00 m²
Wohnfläche Obergeschoss 85,00 m²

Info-Anforderung an WeberHaus GmbH & Co. KG


Kontakt

Firmenzentrale

WeberHaus GmbH & Co. KG

Am Erlenpark 1
77866 Rheinau-Linx

Telefon: +49 7853 83-0
Fax: +49 7853 83-417

www.weberhaus.de

Die Ausstellung Eigenheim und Garten ist nicht verantwortlich für die Inhalte externer Internetseiten.

Eintritt

Eintrittspreis: € 3,–

Ermäßigt: € 1,50
(Kinder bis 16 Jahre, Schüler, Studenten, Rentner, Schwerbehinderte)
Kinder bis 10 Jahre: kostenlos

Parkplatz: € 2,–

Öffnungszeiten

11:00 bis 18:00 Uhr
Mittwoch, Donnerstag, Freitag, Samstag und Sonntag* 
(Montag und Dienstag ist Ruhetag)

* Auch feiertags. Gilt nicht am: Karfreitag,
24.–26.12./31.12./1.1.