Hanse Haus GmbH
Variant 169 Platz 8


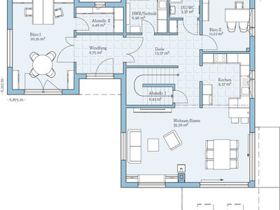
Das Musterhaus Variant 169 bietet mit seinem flachen Satteldach und den zwei Vollgeschossen viel Raum. Im Erdgeschoss sind der offene Wohn-, Ess-und Kochbereich, ein Arbeits-oder Gästezimmer, der Hauswirtschafts-bzw. Technikraum und ein Duschbad untergebracht. Ein separater Flachdachanbau mit Garage ermöglicht den wettergeschützten Zugang zum Haus, der Kellerersatzraum bietet praktische Abstellfläche. Im Obergeschoss befinden sich das Elternschlafzimmer mit eigenem Bad und Ankleide sowie zwei Kinderzimmer und ein Duschbad. 

BESONDERHEITEN
• zwei Vollgeschosse bieten viel Raum für die ganze Familie
• ein Ankleideraum im Elterschlafzimmer bietet zusätzlichen Stauraum
• direkter Zugang von der Garage zum Haus Licht ins Innere des Hauses und sorgen für ein helles und freundliches Ambiente

ENERGIE-EFFIZIENZ Standardmäßig entspricht die Gebäudehülle der Hanse-Häuser den Anforderungen des Förderprogrammes zum Bau von KfW-40 Effizienzhäusern. In Kombination mit einem der Heiz-und Haustechnikpakete werden die Förderkriterien der Kreditanstalt für Wiederauf¬bau (KfW) zum Erhalt von günstigen Finanzierungskonditionen erfüllt. Hanse-Häuser können als KfW-Effizienzhaus 55/ 40 / 40-Plus, PlusEnergie-Haus als Passivhaus realisiert werden.

Kontakt zum Objekt „Variant 169“

Ausstellung Frankfurt
Telefon +49 6101 9870616
Fax +49 6101 9877622

Details

Gesamtwohnfläche 199,00 m²
Wohnfläche Erdgeschoss 122,00 m²
Wohnfläche Obergeschoss 77,00 m²
Konstruktionsart Holztafelbauweise

Info-Anforderung an Hanse Haus GmbH


Kontakt

Firmenzentrale

Hanse Haus GmbH

Ludwig-Weber-Str. 18
97789 Oberleichtersbach

Telefon: +49 9741 808-0
Fax: +49 9741 808-479

www.hanse-haus.de

Die Ausstellung Eigenheim und Garten ist nicht verantwortlich für die Inhalte externer Internetseiten.

Eintritt

Eintrittspreis: € 3,–

Ermäßigt: € 1,50 (Kinder bis 16 Jahre, Schüler, Studenten, Rentner, Schwerbehinderte)

Kostenlos: Kinder bis 10 Jahre

Parkplatz: € 1,50

Öffnungszeiten

11:00 bis 18:00 Uhr
Mittwoch, Donnerstag, Freitag, Samstag und Sonntag* 
(Montag und Dienstag ist Ruhetag)

* Auch feiertags. Gilt nicht am: Karfreitag,
24.–26.12./31.12./1.1.