STREIF Haus GmbH
Musterhaus Bad Vilbel Platz 11


Gemütliches Ambiente mit durchdachter Raumaufteilung - so beschreiben viele Besucher begeistert das Musterhaus "Bad Vilbel" von STREIF.

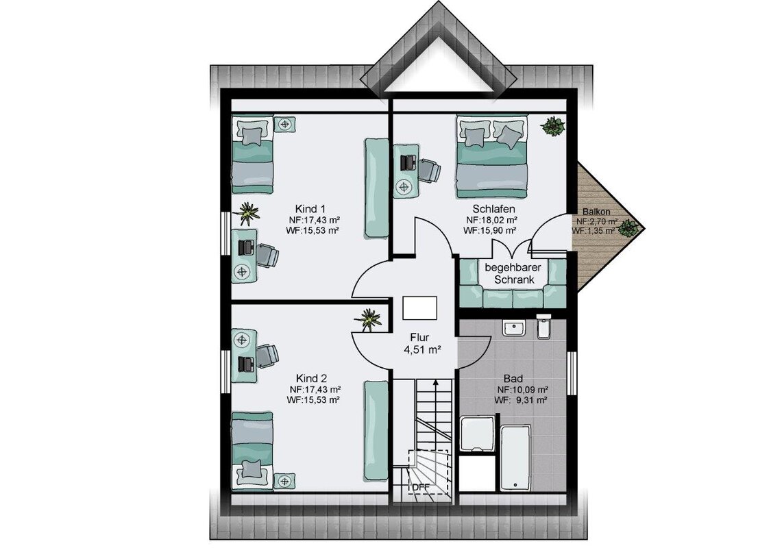
Highlight des Hauses im 78,65 m² großen Erdgeschoss ist der großzügige verglaste Wohnerker, durch den ein sehr heller, freundlicher Wohn- und Essbereich entsteht. Im Dachgeschoss befinden sich auf 58,12 m² zwei geräumige Kinderzimmer sowie Bad und Elternschlafzimmer mit Balkon. Selbstverständlich ist bei jedem STREIF-Haus die Raumaufteilung ganz nach Ihren Wünschen zu gestalten. Sie erreichen die Effizienzhausklasse KfW40 bereits mit der im Standard enthaltenen Ausstattung. Ohne Wenn und Aber.

Nehmen Sie direkten Kontakt zu uns auf -
gerne beantworten wir Ihre Anfragen telefonisch oder per Mail:

Herr Ing. Tarek Tony, e-Mail: tarek.tony(@)streif.de 

Kontakt zum Objekt „Musterhaus Bad Vilbel“

Ausstellung Frankfurt
Telefon +49 6101 580020
Fax +49 6101 580014

Details

Gesamtwohnfläche 136,40 m²
Wohnfläche Erdgeschoss 77,31 m²
Wohnfläche Obergeschoss 59,09 m²
Konstruktionsart Holzständerbauweise

Info-Anforderung an STREIF Haus GmbH


Kontakt

Firmenzentrale

STREIF Haus GmbH

Josef-Streif-Str. 1
54595 Weinsheim/Eifel

Telefon: +49 6551 12-00
Fax: +49 6551 12-220
E-Mail: info@streif.de

www.streif.de

Die Ausstellung Eigenheim und Garten ist nicht verantwortlich für die Inhalte externer Internetseiten.

Eintritt

Eintrittspreis: € 3,–

Ermäßigt: € 1,50 (Kinder bis 16 Jahre, Schüler, Studenten, Rentner, Schwerbehinderte)

Kostenlos: Kinder bis 10 Jahre

Parkplatz: € 1,50

Öffnungszeiten

11:00 bis 18:00 Uhr
Mittwoch, Donnerstag, Freitag, Samstag und Sonntag* 
(Montag und Dienstag ist Ruhetag)

* Auch feiertags. Gilt nicht am: Karfreitag,
24.–26.12./31.12./1.1.